Ivystill Lane, Jersey Ivystill Lane, Jersey Ivystill Lane, Jersey Ivystill Lane, Jersey Ivystill Lane, Jersey Ivystill Lane, Jersey Ivystill Lane, Jersey Ivystill Lane, Jersey Ivystill Lane, Jersey Ivystill Lane, Jersey Ivystill Lane, Jersey Ivystill Lane, Jersey Ivystill Lane, Jersey Ivystill Lane, Jersey Ivystill Lane, Jersey Ivystill Lane, Jersey Ivystill Lane, Jersey Ivystill Lane, Jersey
18 PHOTOS FLOOR PLAN MAP BROCHURE

St Saviour

Ivystill Lane, Jersey

For Sale

£860,000

TYPE

House

BEDROOMS

3

BATHROOMS

1

RECEPTIONS

2

PARKING

3

About this Property

  • Exceptional cottage
  • Filled with charm
  • Wonderful garden
  • Garage and parking
  • Conservatory
  • Idyllic location
  • Countryside views

An exceptionally picturesque cottage

*** PRICE REDUCED ***
This attractive granite cottage has been lovingly maintained over the years and is set in a peaceful private enclave at the end of a quiet lane, within a traffic-free courtyard. The property enjoys a truly idyllic location, offering both privacy and convenience, with a single garage adjacent and additional overflow parking available for the whole development.
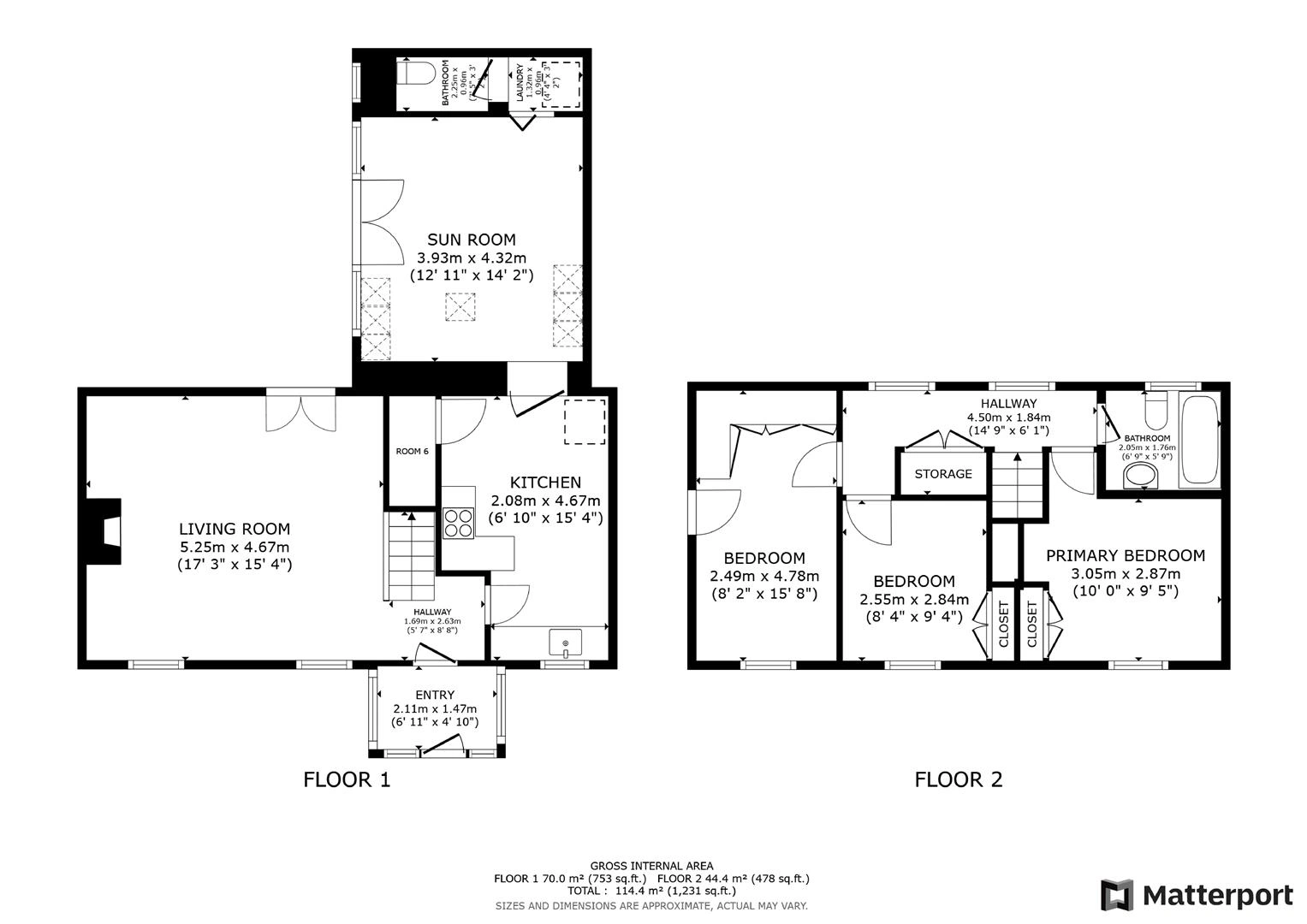
Inside, the cosy lounge features exposed beams and a central, functional fireplace, creating a warm and inviting atmosphere. The kitchen, fitted with an Aga and a handy pantry, flows seamlessly into an exceptionally large conservatory at the rear of the house. This bright and airy space opens directly onto a patio and the beautifully maintained, mature terraced gardens. Beyond the conservatory, you’ll find a useful utility area and a ground floor cloakroom. Cont'd....

Upstairs, there are three well-appointed bedrooms. The main bedroom has a range of fitted wardrobes, while the second double includes a double wardrobe and a charming alcove. The third bedroom, currently used as a dressing room, is a generously sized single with plenty of storage options. A well-maintained house bathroom serves all three bedrooms.
Outside is a lovingly cared-for garden that backs onto open agricultural fields. A delightful area sits at the top of the garden, complete with a summer house—perfect for enjoying the last of the evening sun. Despite the peaceful surroundings, the cottage is within easy walking distance of local schools and shops, offering the perfect blend of countryside tranquility and urban convenience.

VIEWING

Please call Slomans on 87 97 87. Please note that all areas and measurements given in these particulars are approximate and rounded. The text, photographs and floor plans are for general guidance only.

ANTI MONEY LAUNDERING REGULATION

Once an offer is accepted and negotiations for the purchase of a property are entered into, the prospective purchasers will be asked to produce photographic identification (passport or driving licence) and proof of residency documentation eg, a current utility bill together with confirmation of source of funds. This is in order for us to comply with the current Money Laundering Legislation

Services

Mains drains (no gas)
Well water from shared well.
Oil fired

Location

open in google maps

Similar Properties

Similar Properties